New Orleans Territorial Chantry

Ground Floor

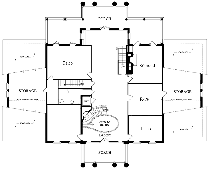
Second Floor

Third Floor

Ritual Level

Library Level